Детская комната для троих детей __ 450 000 руб.


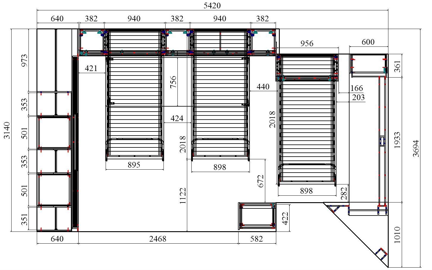
Один из большой проектов детской комнаты площадью почти двадцать квадратных метров. Такой объем удолось получить присоединением к комнате большой лоджии. И в получившемся помещении нужно было разместить три полноценные кровати с матрацами (800 мм*2000 мм), огромный шкаф-купе с отделениями для каждого ребенка, пеналы для хранения постельного и вещей, огромный стол вдоль окна, большой диван. А напротив него расположили шкаф для учебных принадлежностей и телевизор. Над кроватями находятся вместительные антресоли. Вся мебель расположлась вдоль стен и в комнате осталось еще много место для веселого время провождения и учебы. При открытых кроватях был предусмотрен свободный транзит детей.  Комната была выполнена в светло серых тонах. Мателириал подбирался клиентами под космическую тематику. Это вск удолось воплотить в жизнь только с помощью трансформирующейся мебели, до этого в комнате находилась двухъярусная кровать с двухспальным диваном и свободного пространства в комнате совсем не было.

Ресурсы


Ссылки на наши ресурсы на других площадках

Контакты


Телефон

+7 (908) 319-27-51

Адрес

⌂ Омск, 2-я Солнечная улица, 46Ак1